Cooks Lane House, Morridge Side, Bradnop, Leek
£520,000

























Four Bedroom Detached House
Property ID: 34211036
DETACHED FAMILY HOME WITH OVER TWO ACRES OF LAND AND OUTBUILDINGS INC KENNELS, STABLING & STORAGE FACILITIES
Cooks Lane House offers a SIZEABLE FAMILY HOME with ample outside space for a growing family or prime DEVELOPMENT AND BUSINESS OPPORTUNITY in the popular area of Bradnop.
The property provides a fantastic chance to purchase a spacious detached four bedroom family home with an extensive range of outbuildings and grass paddock. The property boasts well equipped kennels, cattery and stabling and is situated within close proximity to the main A523 Leek to Ashbourne Road and a good volume of passing trade. The property as a whole extends to 2.42 acres or thereabouts.
Directions
From our Derby Street office take the A523 Ashbourne Road out of the town. Continue along this road for approximately three miles where Cooks Lane House is situated on the left hand side identifiable by our For Sale board.
Situation
Cooks Lane House is situated in the popular village of Bradnop. Ideally situated being close to the Staffordshire, Cheshire and Derbyshire borders.
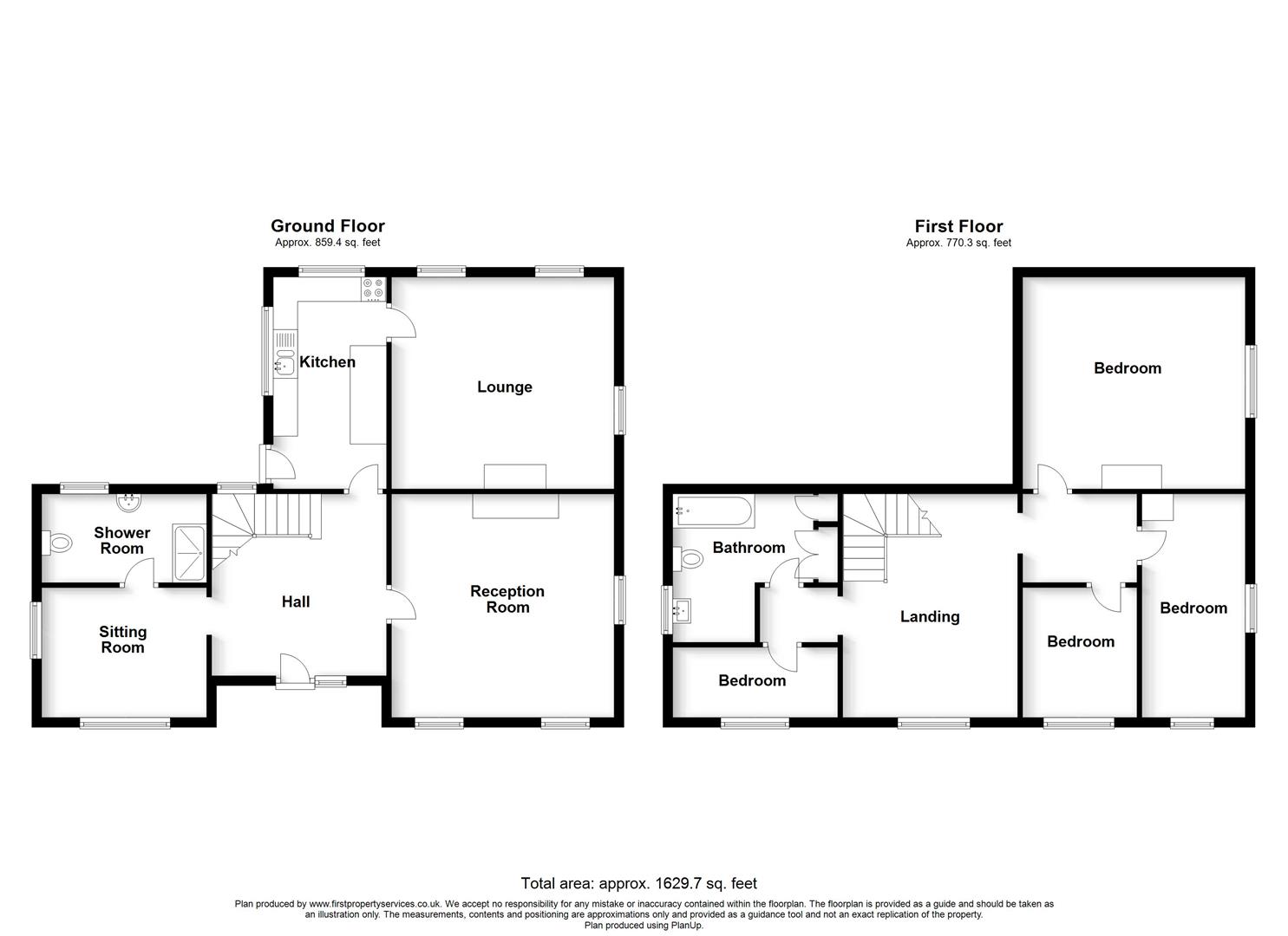
Accommodation Comprises
Covered Porch
Entrance Hall
With stone and wooden staircase leading to galleried landing
Sitting Room 3.38m x 2.68m (11'1" x 8'9")
With uPVC double glazed windows to the front and side aspects and single radiator.
Shower Room 3.37m x 1.47m (11'0" x 4'9")
Having a uPVC double glazed frosted window to the rear aspect being fully tiled with double shower cubicle incorporating Triton shower fitment, wash hand basin, Saniflo low level lavatory, single radiator and tiled floor.
Reception Room 4.60m x 4.49m (15'1" x 14'8")
With uPVC double glazed windows to the front and side aspects, two double radiators, feature stone fireplace and tiled floor.
Kitchen 4.45m x 2.35m (14'7" x 7'8")
The kitchen offers a range of base cupboards and drawers with roll top work surfaces over having inset 1.5 bowl ceramic sink unit with mixer tap along with a range of matching wall cupboards, single radiator. There is a uPVC double glazed external door to the rear aspect and uPVC double glazed windows to the rear and side aspects.
Living Room 4.49m x 4.33m (14'8" x 14'2")
With uPVC double glazed windows to the front and side aspects with feature stone fireplace incorporating living flame gas fire and tiled flooring.
Galleried Landing
With uPVC double glazed window to the front aspect and double radiator. The landing has loft access and giving access to:-
Bedroom One 4.31m x 4.30m (14'1" x 14'1")
With uPVC double glazed window to the front aspect and double radiator.
Bedroom Two 4.43m x 2.15m (14'6" x 7'0")
With uPVC double glazed windows to the front and side aspect and two single radiators.
Bedroom Three 2.70m x 2.14m (8'10" x 7'0")
With uPVC double glazed window to the front aspect and single radiator.
Inner Landing
With loft access and giving access to:-
Bedroom Four/Office 3.26m x 1.45m (10'8" x 4'9")
With uPVC double glazed window to the front aspect, loft access and single radiator.
Family Bathroom 3.24m x 2.61m (10'7" x 8'6")
The bathroom provides a uPVC double glazed frosted window to the side aspect, fully tiled walls and floor and the suite comprises "P" shaped panelled bath with mixer shower fitment, low level lavatory, wash hand basin set in a vanity unit and heated towel. Built in airing cupboard incorporating fixed shelving and foam lagged hot water cylinder.
Outside
The house is approached over a concrete driveway having adjoining lawns and mature trees and shrubs. Gardens to the rear provide an enclosed lawned area incorporating oil tank giving access to the stables and kennels.
Outbuildings
Greenhouse
Timber framed greenhouse.
Store 6.32 x 1.66m (20'8" x 5'5")
Concrete block detached store with UPVC double glazed external door and windows, concrete floor, light and power connected.
Kennels
Hardcore driveway providing ample off road parking for the kennels with gardens offering raised borders.
Reception 3.52m x 3.11m (11'6" x 10'2" )
With UPVC double glazed external door and windows, concrete floor, light and power connected.
Kitchen 2.12 x 1.89m (6'11" x 6'2")
With a range of base cupboards with work surfaces over, inset stainless steel sink unit, matching wall cupboards, UPVC double glazed frosted window.
W.C Off Kitchen
Housing low level lavatory , wash hand basin and uPVC double glazed frosted window.
Kennel Block 15.18 x 5.49m (49'9" x 18'0")
Incorporating individual pens with heat lamp and access to adjoining runs with water connected.
Entrance hall at the rear having uPVC double glazed external door and window, water, light and power connected along with built in store cupboard.
Cattery
Having individual pens including run with ladders to enclosed bedding area, concrete floor and power connected to the building.
Stable Block
Tack Room 9.35m x 2.62m (30'8" x 8'7")
With concrete floor, plumbing for automatic washing machine, light, power and water connected.
Store Room 6.50m x 2.44m (21'3" x 8'0")
With concrete floor, light and power connected.
Stables 9.32m x 3.63m (30'6" x 11'10")
Three individual stables with concrete floor and lighting.
Original Kennel Block 16.59m x 6.0m (54'5" x 19'8")
Containing individual pens with concrete floor.
Land
A short distance along the lane, Cooks Lane House benefits from an additional paddock extending to approximately 1.4 acres or thereabouts and there is also a small paddock opposite the property. The property as a whole extends to 2.42 acres or thereabouts.
Viewings
By prior arrangement through Graham Watkins & Co.
Services
We believe the property is connected to mains services with drainage by means of a septic tank.
Council Tax Band
We believe the property is in band E
Local Authority
The local authority is Staffordshire Moorlands District Council
Tenure and Possession
The property is held freehold and vacant possession will be given upon completion.
Please Note
The agent has not tested any apparatus, equipment, fixtures, fittings or services and cannot verify they are in working order or fit for their purpose, neither has the agent checked the legal documents to verify the freehold/leasehold status of the property.